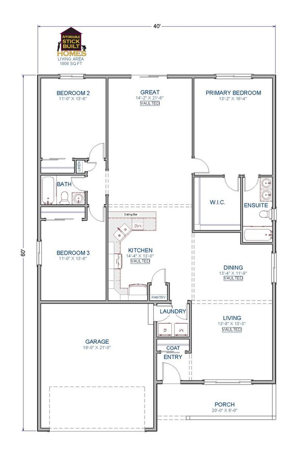
PLAN 1808
Bedrooms: 3
Bathrooms: 2
Square Feet: 1808
DESCRIPTION
The 1808 plan features roomy living spaces that flow together like a well-choreographed dance. It showcases vaulted Living and Great Rooms. The Kitchen is a chef's paradise with oodles of counter space for culinary creativity and a cozy eating bar. The Primary Bedroom suite is a dream come true, boasting a spacious Walk-In Closet and an Ensuite Bath with a double sink vanity.
FEATURES
- VAULTED LIVING & GREAT ROOMS
- VAULTED KITCHEN & DINING
- PANTRY CLOSET
- PRIMARY BEDROOM SUITE w/WALK-IN CLOSET
- TWO-CAR GARAGE
- COVERED FRONT PORCH

