PLAN 3077
Bedrooms: 3
Bathrooms: 2.5
Square Feet: 3077
DESCRIPTION
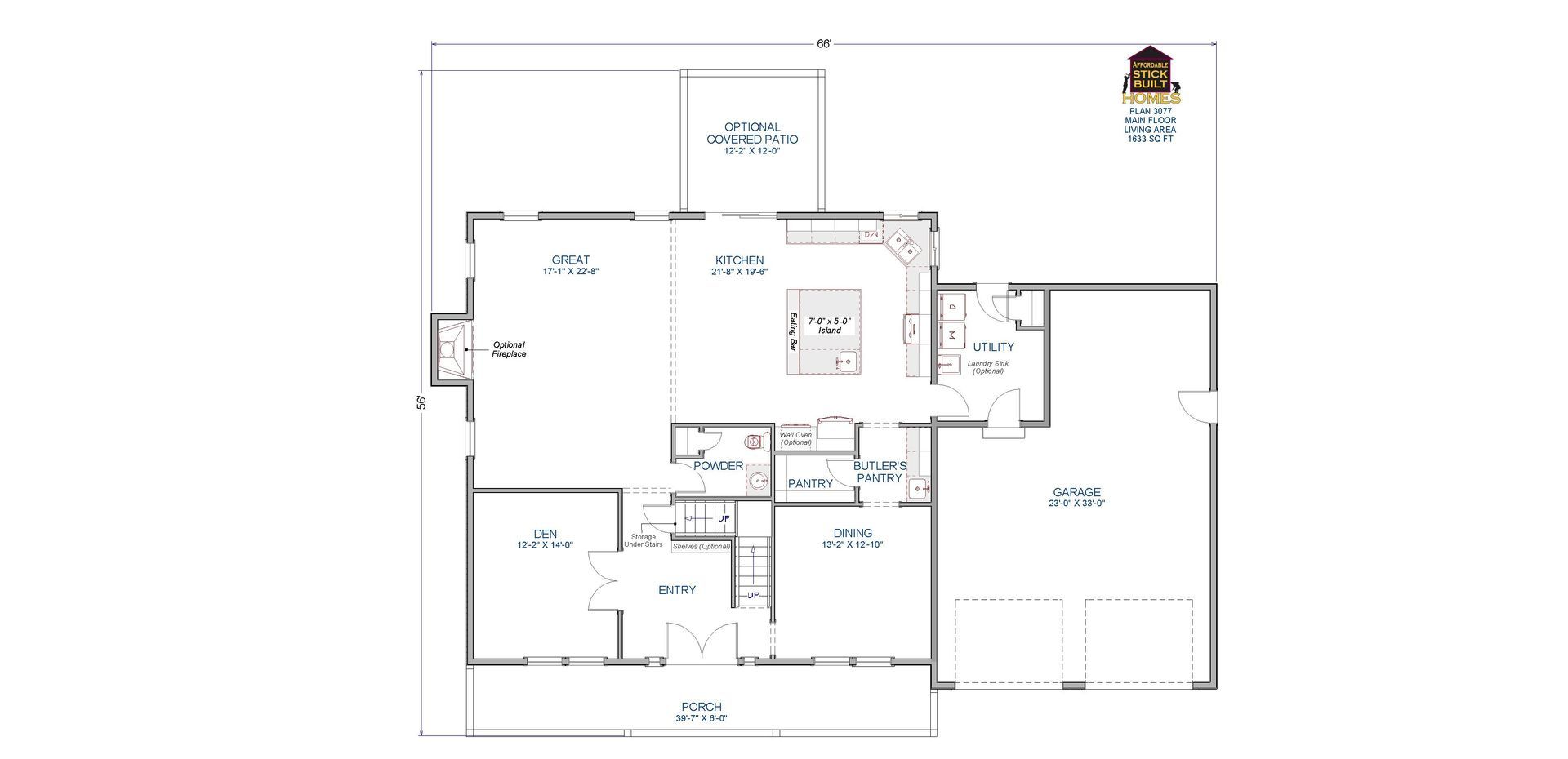
The stately 3077 plan has room for everyone and everything. Stroll from the full-length Front Porch into a lovely Foyer. Need a quiet spot? The Den/Office is a perfect hideaway for work or relaxation.
Meander down the hall to the sprawling Great Room and a Kitchen that is a gourmet cook’s delight complete with an island, Walk-In Pantry, and Butler’s Pantry. A formal Dining Room awaits your family feasts.
Head upstairs to find a cozy nook, ideal for the kids’ game or media adventures.
The Primary Bedroom suite is like your own personal spa retreat as it features two Walk-In Closets, walk-in shower, soaking tub, and dual sink vanities.
FEATURES
- GREAT ROOM
- OPTIONAL FIREPLACE
- FORMAL DINING ROOM
- BUTLER’S PANTRY
- WALK-IN PANTRY
- OFFICE/DEN
- ENSUITE PRIMARY BEDROOM w/TWO WALK-IN CLOSETS.
- TWO-CAR GARAGE
- COVERED FRONT PORCH
- OPTIONAL COVERED BACK PATIO
