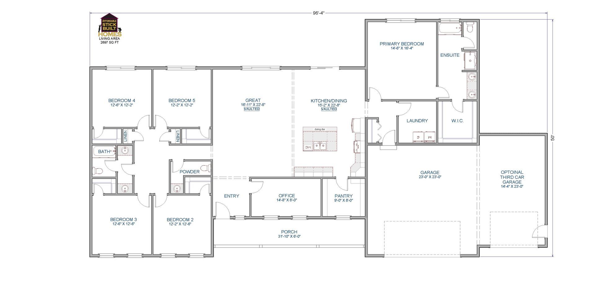
PLAN 2697
Bedrooms: 5
Bathrooms: 2.5
Square Feet: 2697
DESCRIPTION
This expansive layout is sure to please! The open concept design features vaulted ceilings in the Great Room, Kitchen, and Dining areas.
The Kitchen is a chef’s playground that features an island with eating bar and a walk-in Pantry that’s practically its own zip code!
Five Bedrooms mean everyone gets their own space. The Primary Bedroom suite is an oasis with a Walk-In Closet. Ensuite Bathroom with double sink vanities, relaxing soaking tub, and separate shower.
Think of it as the supersized sibling of our 1966 and 2181 floor plans!
FEATURES
- VAULTED LIVING, KITCHEN, & DINING AREAS
- OFFICE
- EAT-IN KITCHEN
- WALK-IN PANTRY
- FIVE BEDROOMS
- TWO AND A HALF BATHROOMS
- OPTION FOR THREE CAR GARAGE
- COVERED FRONT PORCH














































