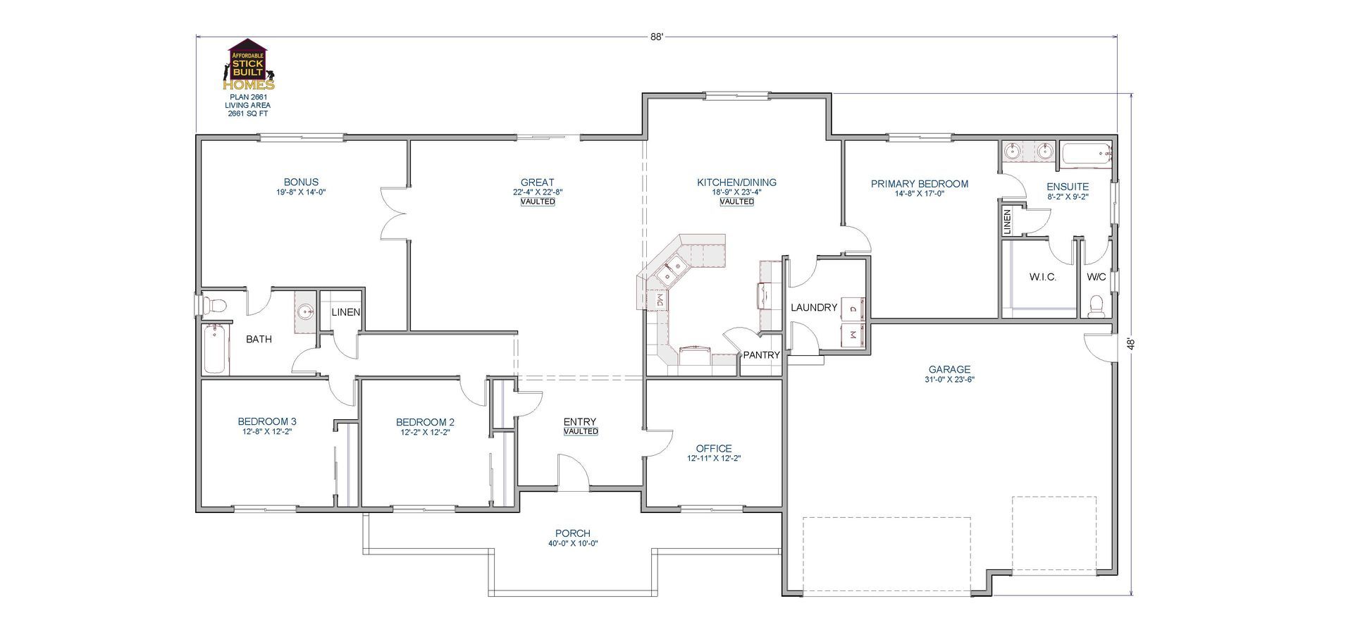
PLAN 2661
Bedrooms: 3
Bathrooms: 2
Square Feet: 2661
DESCRIPTION
The ideal layout for a growing family!
The expansive Great Rooms seamlessly flows into the eat-in Kitchen with eating bar and walk-in Pantry.
There is an Office for...well, whatever needs serious brainstorming.
Plus, a Bonus Room awaits your wildest whims-media wonderland, game haven, or fitness paradise.
Retreat into the Primary Bedroom suite with Walk-In Closet, and Ensuite Bathroom with double sink vanities for a morning routine that’s doubly delightful!
FEATURES
- VAULTED LIVING, KITCHEN, & DINING AREAS
- WALK-IN PANTRY
- BONUS ROOM
- OFFICE
- THREE BEDROOMS
- TWO BATHROOMS
- THREE CAR GARAGE
- COVERED FRONT PORCH
