PLAN 2354
Bedrooms: 4
Bathrooms: 2.5
Square Feet: 2354
DESCRIPTION
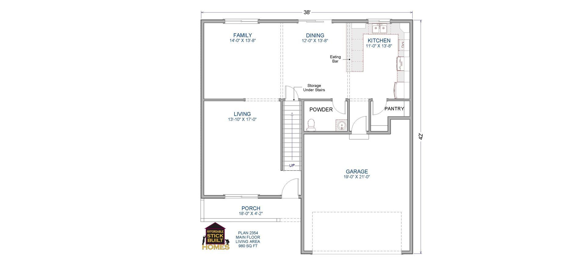
This two-story family haven is all about blending spaces and hearts! On the main floor, your Living, Family, and Dining Rooms flow together like a perfect symphony, while the Kitchen wraps around with a Walk-In Pantry that's a real crowd-pleaser.
Upstairs, there's plenty of space for everyone with four Bedrooms and a handy Laundry Room. The Primary Bedroom suite is the crown jewel, boasting a Walk-in Closet and an Ensuite Bathroom.
FEATURES
- LIVING & FAMILY ROOMS
- DINING ROOM
- WALK-IN PANTRY
- FOUR BEDROOMS
- TWO AND A HALF BATHROOMS
- UPPER FLOOR LAUNDRY ROOM
- TWO-CAR GARAGE
- COVERED FRONT PORCH
