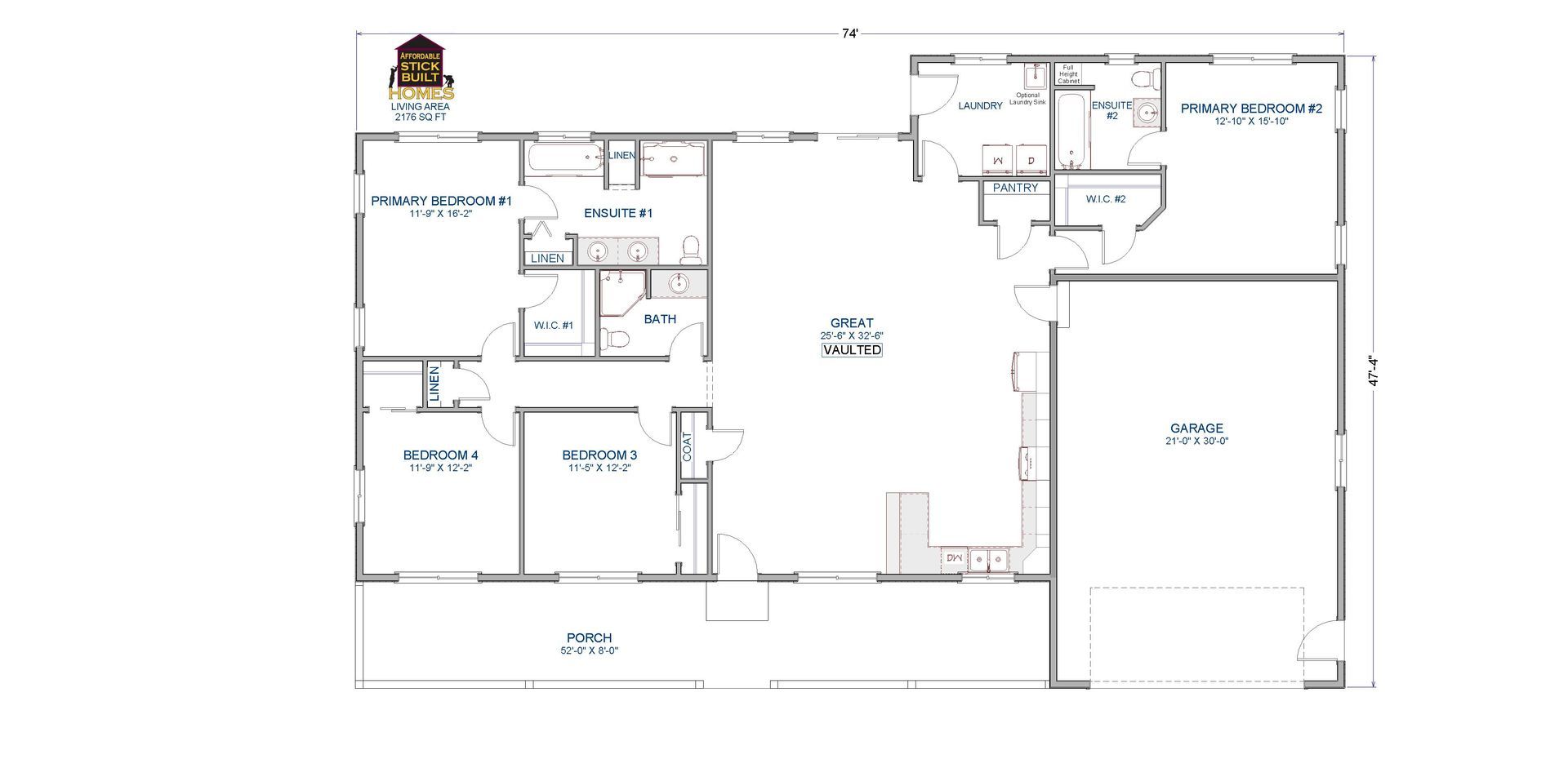
PLAN 2176
Bedrooms: 4
Bathrooms: 3
Square Feet: 2176
DESCRIPTION
From the charming Front Porch you enter into the majestic Great Room, where a vaulted Living area snuggles up to a fabulous Kitchen, flaunting its own peninsula eating bar and a Pantry Closet.
Revel in the luxury of not one, but two Primary Bedroom suites, each showcasing its own Ensuite Bathroom and Walk-In Closet. It's family living at its finest!
FEATURES
- OPEN CONCEPT FLOOR PLAN
- VAULTED LIVING, KITCHEN, & DINING AREAS
- PANTRY CLOSET
- TWO PRIMARY BEDROOM SUITES
- TWO BEDROOMS
- THREE BATHROOMS
- TWO CAR GARAGE
- COVERED FRONT PORCH
