PLAN 2131
DESCRIPTION
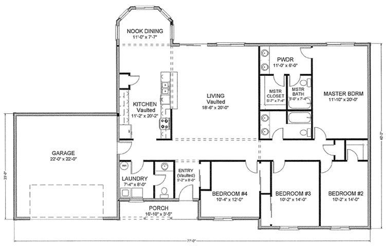
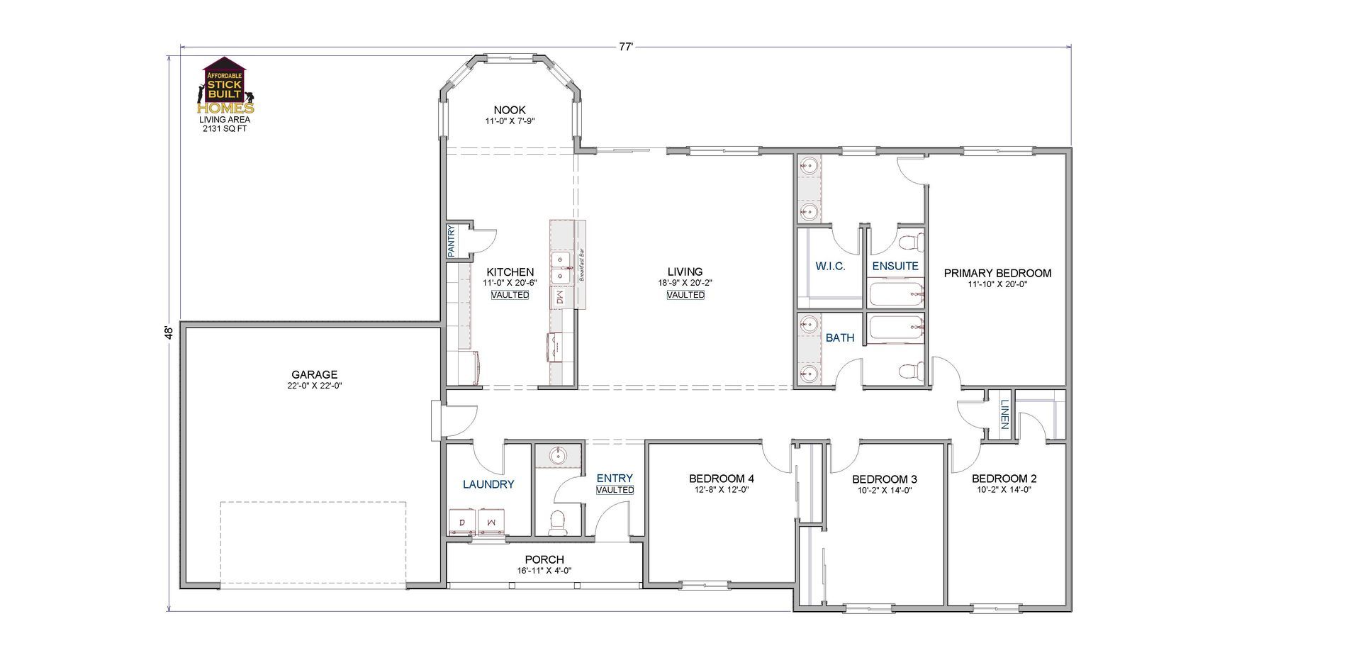
The 2131 plan is a spacious single family home floor plan with a spacious living area. Its four bedrooms with two and one half bathrooms make it the perfect size for families at any stage.
Features
- 4 Bedrooms
- 2.5 Bathrooms
- Vaulted Living Room and Kitchen
- Dining Nook
- 2 Car Garage
- Covered Front Porch























































