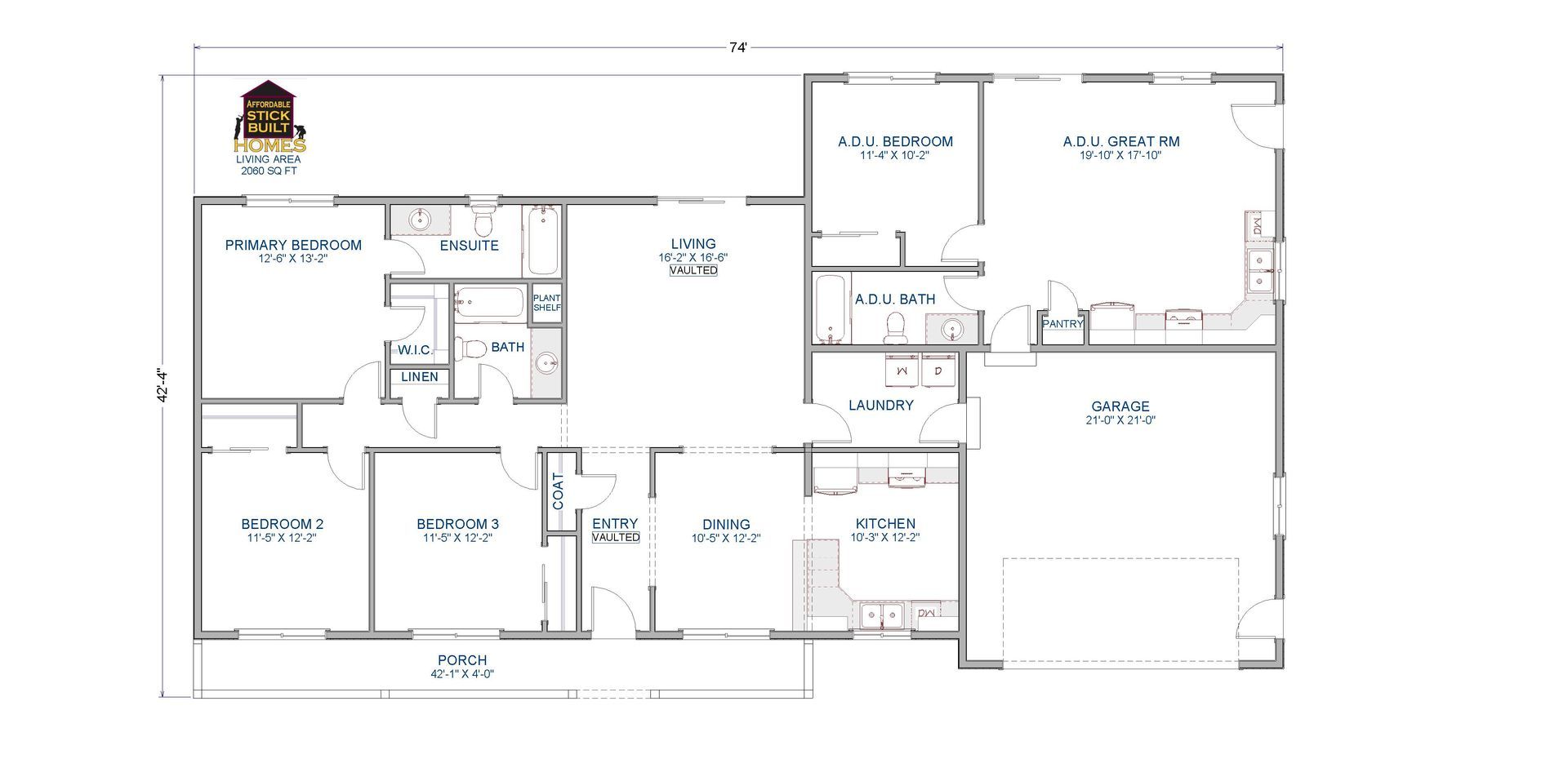
PLAN 2060
Bedrooms: 4
Bathrooms: 3
Square Feet: 2060
DESCRIPTION
This floorplan is like a dream house for the whole family tree! The main living space includes Living Room, Dining Room, Kitchen, two Bedrooms, and a Primary Bedroom suite with a Walk-In Closet and Ensuite Bathroom.
Meanwhile, the attached ADU is a cozy little hideaway with its own entrance, open concept Living and Kitchen space, Pantry Closet, Bedroom, and full Bathroom!
FEATURES
- MULTI-GENERATIONAL LIVING
- DUAL LIVING & KITCHEN AREAS
- LAUNDRY/MUDROOM
- FOUR BEDROOMS
- THREE BATHROOMS
- TWO-CAR GARAGE
- COVERED FRONT PORCH
