PLAN 1924
Bedrooms: 3
Bathrooms: 2
Square Feet: 1924
DESCRIPTION
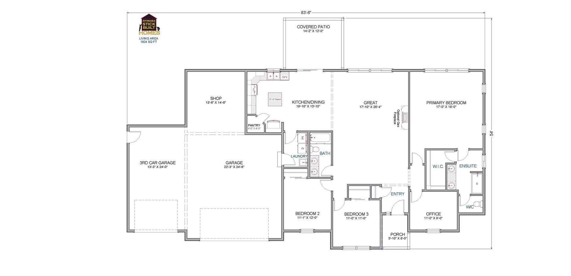
Welcome to this jaw-dropping single-story haven, where the Great Room might just steal your heart—especially if you opt for the cozy gas fireplace! The open-concept layout flows effortlessly into the Eat-in Kitchen, featuring an island and a Walk-In Pantry that could make even a chef swoon.
Retreat to the Primary Bedroom suite, decked out with a roomy Walk-In Closet and a private Ensuite Bathroom. An Office is conveniently located nearby, ready for all your genius ideas.
Step outside to the Covered Back Patio, your personal paradise for kicking back and soaking up the good vibes. Plus, the three-car Garage comes with a dedicated shop area for all your tinkering needs.
This gem is crafted with family living in mind, presenting the perfect blend of style and comfort.
FEATURES
- OPEN CONCEPT FLOOR PLAN
- OFFICE
- EAT-IN KITCHEN
- WALK-IN PANTRY
- LAUNDRY/MUDROOM
- THREE-CAR GARAGE w/SHOP AREA
- COVERED FRONT PORCH & BACK PATIO
