PLAN 1783
DESCRIPTION
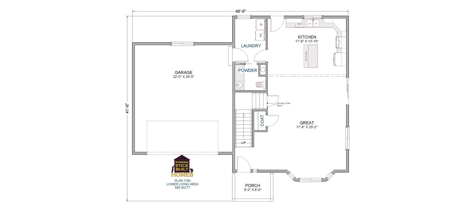
This two-story design boasts a captivating front exterior! The charm is enhanced by bay windows on both the main and upper floors. Enjoy an open-concept layout on the main floor. The Primary Bedroom suite? Oh, it's got not one, but two closets and a cozy Ensuite Bathroom. You'll find
desirable features that deliver exceptional value.
FEATURES
- OPEN CONCEPT MAIN FLOOR
- EAT-IN KITCHEN w/ISLAND
- LAUNDRY/MUDROOM
- THREE BEDROOMS
- TWO AND A HALF BATHROOMS
- TWO-CAR GARAGE
- COVERED FRONT PORCH

