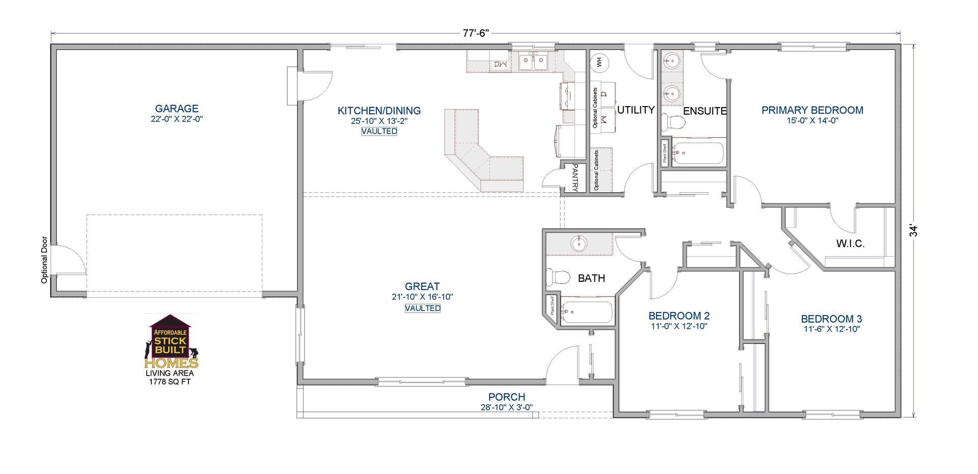
PLAN 1778
Bedrooms: 3
Bathrooms: 2
Square Feet: 1778
DESCRIPTION
This ranch-style home exudes a sense of spaciousness that surpasses its actual size. The open-concept layout ensures that everyone feels included in the activities, creating an atmosphere of openness and seamless flow throughout the house. It's an ideal design for hosting gatherings with
family and friends!
FEATURES
- VAULTED LIVING, KITCHEN, & DINING AREAS
- KITCHEN ISLAND WITH EATING BAR
- PRIMARY BEDROOM SUITE w/WALK-IN CLOSET
- ENSUITE BATHROOM WITH DOUBLE SINK VANITY
- UTILITY ROOM
- TWO-CAR GARAGE
- COVERED FRONT PORCH
