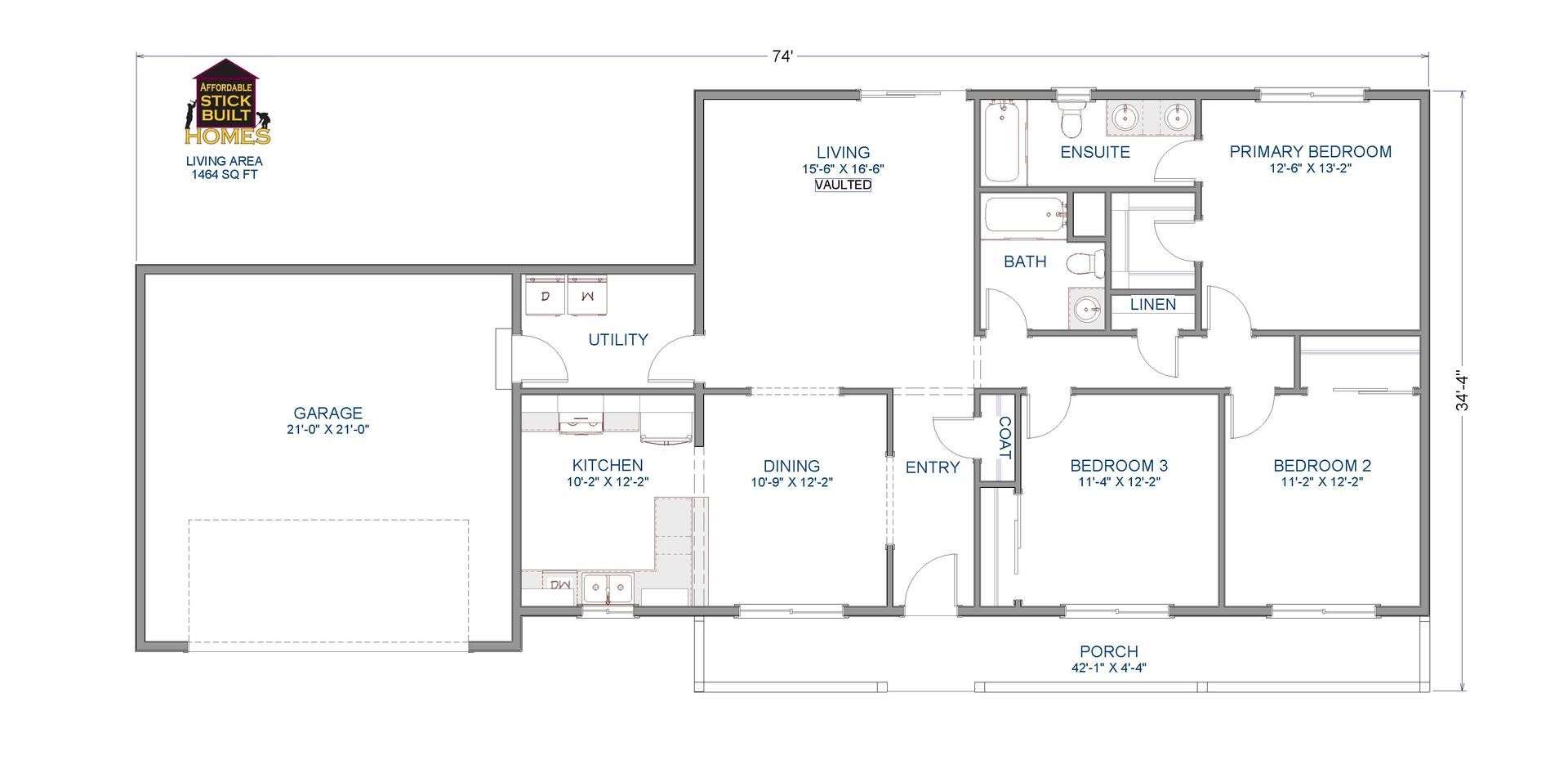
PLAN 1464
Bedrooms: 3
Bathrooms: 2
Square Feet: 1464
DESCRIPTION
Seeking space and comfort? This spacious mid-sized floor plan might be just what you need! The Kitchen is a cook's delight, boasting ample counter space and a convenient eating bar. The Living and Dining areas are ideal for hosting family gatherings and entertaining friends. The Primary Bedroom suite flaunts a walk-in closet, perfectly positioned next to the ensuite bathroom for maximum convenience!
FEATURES
- VAULTED ENTRY & LIVING AREAS
- DINING ROOM
- PRIMARY BEDROOM SUITE w/WALK-IN CLOSET
- TWO-CAR GARAGE
- COVERED FRONT PORCH
